Penarth Dock, South Wales - 150 years - the heritage and legacy  
Penarth Dock, South Wales - the heritage & legacy . . .
Volume Twelve - Pre-Victorian to the Present Day - further aspects - Report upon Penarth Dock - 1984 . . .
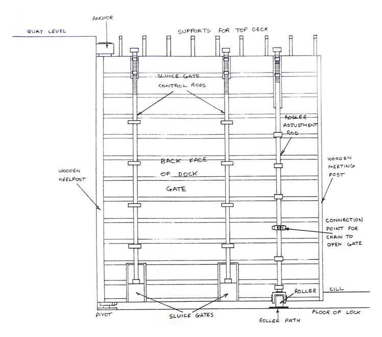
Figure 14 - Roller and sluice gate. - Details for a single gate at Penarth Dock.
Figure 14 - Roller and sluice gate. - Details for a single gate at Penarth Dock. [1292]

The following text is taken from Appendix A - Details of Illustrations:

This figure is based upon a photograph of the gate taken during the construction of the dock. Some details have been included that were unclear in the photograph. It should be noted that this figure represents the original gate which was removed and replaced in the 1920's. Note also that only a single gate is shown in a closed position. The adjoining gate has been left out of the figure for clarity.

Dai-the-Rat

The webmaster (Dai-the-Rat) recalls as an apprentice at the Penarth Dock Engineering Company, laminating numerous strips of lignum vitae wood using a waterproof adhesive and G-clamps around a former. The ring of wood was then turned by myself in a centre-lathe to make two replacement bearings, I believe, for the sea lock gates at Penarth Dock. They were about 12" in diameter and would have been fitted at the upper bearing location indicated on the sketch above as 'Anchor'. I also made from the scraps a lovely poker for the coal-fire at home as a present for my lovely Mum which had a beautiful, polished, lignum vitae handle!

 

 
© 2014 - 2025 - penarth-dock.org.uk - all rights reserved - web design by Dai the Rat